Beschrijving
In rustige gewilde kindvriendelijke woonomgeving nabij het centrum gelegen TUSSENWONING met inpandige GARAGE en onderhoudsvriendelijke achtertuin (W).
Indeling
hal/entree, inpandige garage. toilet met fontein, woonkeuken met keukenblok in rechte opstelling en vide.
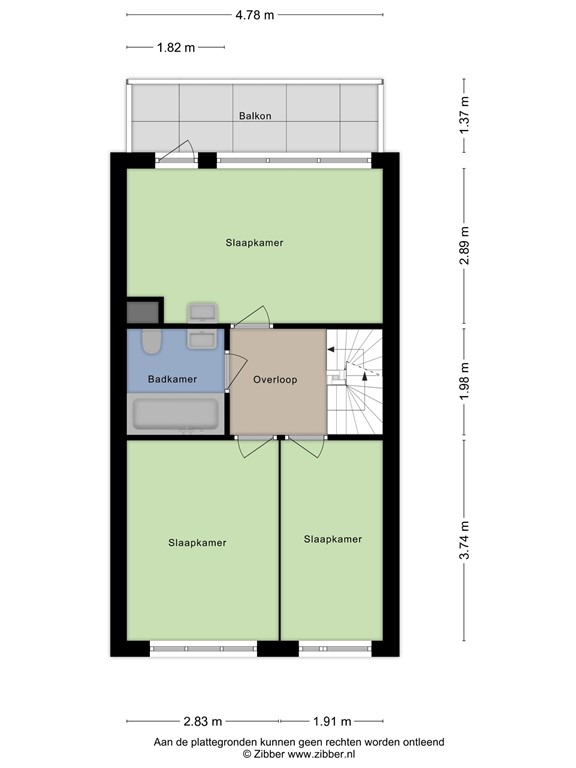
Eerste verdieping
overloop, 3 slaapkamers (ouderslaapkamer met balkon), badkamer met ligbad-/douchecombinatie 2e toilet en vaste wastafel.
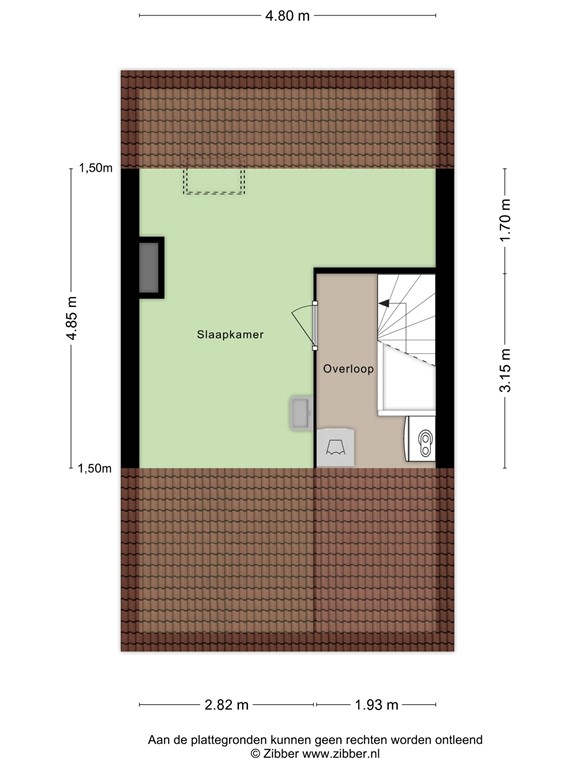
Tweede verdieping
overloop met witgoedaansluiting en cv-ketel, 4e slaap-/werkkamer met dakraam, vaste wastafel en verwarming.
Overige verdiepingen
Onderverdieping: woonkamer met toegang tot de tuin.
Balkon
Balkon (W) gelegen aan achterzijde van de woning, bereikbaar via ouderslaapkamer op eerste verdieping.
Tuin
Onderhoudsvriendelijke tuin (W) met veel privacy.
Bijzonderheden
Rustige wijkstraat nabij bossen en het centrum van Groesbeek met al haar voorzieningen. De woning is voorzien van houten kozijnen met enkele/dubbele beglazing en dakisolatie (PUR-platen). Remeha Avanta combiketel, bouwjaar 2010. Er is parkeergelegenheid op eigen terrein en in de directe omgeving van de woning.
Het buitenschilderwerk van de woning verdient aandacht. Het definitieve energielabel is aangevraagd en volgt binnenkort.
Het centrum van Nijmegen, ziekenhuizen en universiteit liggen op circa 15 autominuten.
Plattegronden
178190848_1588223_beeth_souterrain_first_design_20251020_b98cd5.jpg
178190848_1588223_beeth_begane_grond_first_design_20251020_2cb3ae.jpg
178190848_1588223_beeth_eerste_verdiepi_first_design_20251020_840419.jpg
178190848_1588223_beeth_tweede_verdiepi_first_design_20251020_0d349f.jpg