| Prijs | € 398.000,- k.k. |
| Type object | Woonhuis, eengezinswoning, tussenwoning |
| Perceeloppervlakte | 136 m² |
| Woonoppervlakte | 104 m² |
| Aanvaarding | In overleg |
| Status | Onder bod |
Opvallend ruime luxe uitgevoerde TUSSENWONING met houten TUINBERGING en zonnige tuin (ZW) met achterom gelegen in een rustige gewilde moderne woonwijk.
hal/entree, luxe (hang)toilet met fontein, L-vorm eet-/woonkamer met bergkast, airco-unit en toegang tot terras en tuin middels openslaande deuren, halfopen keuken met luxe keukenblok in dubbele opstelling met diverse inbouwapparatuur. De woonkamer en keuken is voorzien van een eikenhouten vloer.
overloop, 3 slaapkamers allen voorzien van dakramen, luxe moderne badkamer met ligbad, douchecabine, 2e toilet, vaste wastafel in badkamermeubel en designradiator.
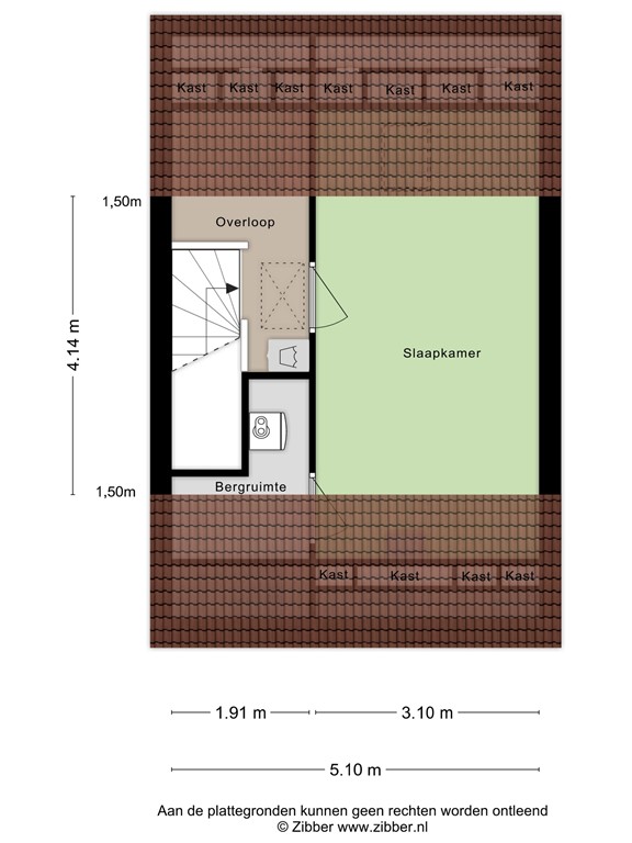
middels vaste trap te bereiken voorzolder met bergruimten en wasmachine-aansluiting, ruime 4e slaapkamer met dakraam.
Bergzolder/vliering, te bereiken via vlizotrap op overloop tweede verdieping.
Onderhoudsvriendelijke zonnige achtertuin, gelegen op het zuidwesten, met achterom en vrijstaande houten tuinberging.
De woning is gebouwd onder moderne architectuur en volledig voorzien van isolatie, Remeha HR combiketel (bouwjaar 2023), 10 zonnepanelen (eigendom, geplaatst 2024) ligging op het zuidwesten, airco-unit in woonkamer. Het definitieve energielabel A is geldig tot 21-06-2028. Rustige kindvriendelijke woonomgeving nabij het buitengebied, scholen, een supermarkt, openbaar vervoer en het centrum van Groesbeek met al haar voorzieningen. Er is parkeergelegenheid in de directe omgeving van de woning.
| Referentienummer | 05982 |
| Vraagprijs | € 398.000,- k.k. |
| Status | Onder bod |
| Aanvaarding | In overleg |
| Aangeboden sinds | Vrijdag 23 januari 2026 |
| Laatste wijziging | Dinsdag 10 maart 2026 |
| Type object | Woonhuis, eengezinswoning, tussenwoning |
| Soort bouw | Bestaande bouw |
| Bouwperiode | 2007 |
| Dakbedekking | Dakpannen |
| Type dak | Zadeldak |
| Isolatievormen | Dakisolatie Dubbel glas HR-glas Muurisolatie Spouwmuren Vloerisolatie Volledig geïsoleerd |
| Perceeloppervlakte | 136 m² |
| Woonoppervlakte | 104 m² |
| Inhoud | 345 m³ |
| Oppervlakte overige inpandige ruimten | 2 m² |
| Oppervlakte externe bergruimte | 5 m² |
| Aantal bouwlagen | 4 |
| Aantal kamers | 5 (waarvan 4 slaapkamers) |
| Aantal badkamers | 1 (en 1 apart toilet) |
| Ligging | Aan rustige weg Dichtbij openbaar vervoer In woonwijk Nabij school |
| Type | Achtertuin |
| Oriëntering | Zuid-west |
| Heeft een achterom | Ja |
| Staat | Goed onderhouden |
| Energielabel | A |
| CV ketel | Remeha HR combi |
| Warmtebron | Gas |
| Bouwjaar | 2023 |
| Combiketel | Ja |
| Eigendom | Eigendom |
| Warm water | CV-ketel |
| Verwarmingssysteem | Centrale verwarming |
| Ventilatie methode | Mechanische ventilatie |
| Keukenvoorzieningen | Inbouwapparatuur |
| Badkamervoorzieningen | Douche Ligbad Toilet Wastafel Wastafelmeubel |
| Heeft airco | Ja |
| Glasvezelaansluiting aanwezig | Ja |
| Tuin aanwezig | Ja |
| Heeft schuur/berging | Ja |
| Heeft een dakraam | Ja |
| Heeft zonnepanelen | Ja |
| Heeft ventilatie | Ja |
| Kadastrale aanduiding | Groesbeek p 652 |
| Perceeloppervlakte | 136 m² |
| Omvang | Geheel perceel |
| Eigendomsituatie | Eigen grond |