| Prijs | € 635.000,- k.k. |
| Type object | Woonhuis, eengezinswoning, twee onder een kap woning |
| Perceeloppervlakte | 309 m² |
| Woonoppervlakte | 154 m² |
| Aanvaarding | In overleg |
| Status | Nieuw in verkoop |
Keurig onderhouden luxe en sfeervol uitgevoerde instapklare HALFVRIJSTAANDE WONING (type 2/1 kap woning), GARAGE met CARPORT, houten TUINOVERKAPPING met BERGING en zonnige onderhoudsvriendelijke achtertuin gelegen nabij het centrum van Groesbeek.
hal/entree, luxe (hang)toilet met fontein, woonkeuken met erker, luxe moderne keuken met diverse inbouwapparatuur, kook-/werkeiland en apparaten-/kastenwand, L-vorm woonkamer met toegang tot terras en tuin. Garage met carport, openslaande deuren en toegang tot de tuin.
overloop, 3 slaapkamers (ouderslaapkamer met ruime inloopkast), luxe moderne badkamer met inloopdouche, ligbad-/douchecombinatie, dubbele wastafel in badkamermeubel, separaat luxe (hang)toilet met fontein.
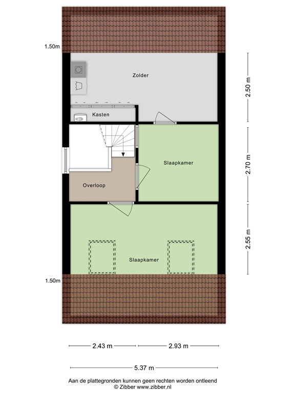
overloop, 2 slaap-/werkkamers, bergruimte met kastenwand en witgoed-aansluitingen.
Zonnige ruime achtertuin (zuiden) met houten overkapping en berging.
De woning en garage zijn volledig voorzien van isolatie, 16 zonnepanelen (eigendom, geplaatst 2017), airco-unit op begane grond en 2e verdieping, hardhouten kozijnen met HR++ beglazing, buitenschilderwerk 2022. De begane grond (met eikenhouten vloer), 1e verdieping van de woning en de garage zijn voorzien van vloerverwarming. Onderhoudsvriendelijke zonnige tuin (gelegen op het zuiden) met royale houten tuinoverkapping en berging. Er is parkeergelegenheid voor drie auto’s op eigen terrein (2 overdekt) en in de directe omgeving van de woning. Het definitieve energielabel is aangevraagd en volgt z.s.m. Deze instapklare luxe en sfeervol uitgevoerde woning moet u beslist gezien hebben !!
| Referentienummer | 05977 |
| Vraagprijs | € 635.000,- k.k. |
| Status | Nieuw in verkoop |
| Aanvaarding | In overleg |
| Aangeboden sinds | Vrijdag 9 januari 2026 |
| Type object | Woonhuis, eengezinswoning, twee onder een kap woning |
| Soort bouw | Bestaande bouw |
| Bouwperiode | 2017 |
| Dakbedekking | Dakpannen |
| Type dak | Zadeldak |
| Isolatievormen | Dakisolatie Dubbel glas HR-glas Muurisolatie Spouwmuren Vloerisolatie Volledig geïsoleerd |
| Perceeloppervlakte | 309 m² |
| Woonoppervlakte | 154 m² |
| Inhoud | 595 m³ |
| Oppervlakte overige inpandige ruimten | 37 m² |
| Oppervlakte externe bergruimte | 9 m² |
| Oppervlakte gebouwgebonden buitenruimte | 24 m² |
| Aantal bouwlagen | 3 |
| Aantal kamers | 6 (waarvan 5 slaapkamers) |
| Aantal badkamers | 1 (en 2 aparte toiletten) |
| Ligging | Dichtbij openbaar vervoer In woonwijk Nabij school |
| Type | Achtertuin |
| Oriëntering | Zuiden |
| Staat | Goed onderhouden |
| CV ketel | Remeha avanta |
| Warmtebron | Gas |
| Bouwjaar | 2017 |
| Combiketel | Ja |
| Eigendom | Eigendom |
| Aantal parkeerplaatsen | 3 |
| Aantal overdekte parkeerplaatsen | 2 |
| Warm water | CV-ketel Elektrische boiler |
| Verwarmingssysteem | Airconditioning Centrale verwarming Vloerverwarming (gedeeltelijk) |
| Ventilatie methode | Mechanische ventilatie |
| Keukenvoorzieningen | Inbouwapparatuur Kookeiland |
| Badkamervoorzieningen | Dubbele wastafel Inloopdouche Ligbad Vloerverwarming Wastafelmeubel |
| Parkeergelegenheid | Garage met carport |
| Heeft airco | Ja |
| Glasvezelaansluiting aanwezig | Ja |
| Tuin aanwezig | Ja |
| Heeft een garage | Ja |
| Heeft schuur/berging | Ja |
| Heeft een dakraam | Ja |
| Heeft zonnepanelen | Ja |
| Heeft ventilatie | Ja |
| Kadastrale aanduiding | Groesbeek P 1034 |
| Perceeloppervlakte | 309 m² |
| Omvang | Geheel perceel |
| Eigendomsituatie | Eigen grond |