| Prijs | € 525.000,- k.k. |
| Type object | Woonhuis, eengezinswoning, twee onder een kap woning |
| Perceeloppervlakte | 282 m² |
| Woonoppervlakte | 130 m² |
| Aanvaarding | In overleg |
| Status | Nieuw in verkoop |
In gewilde moderne woonwijk nabij scholen, speelvelden en voorzieningen gelegen ruime HALFVRIJSTAANDE (type 2/1 kap) WONING met GARAGE, zonnige tuin (Z) met houten TUINBERGING en OVERKAPPING.
hal/entree, toilet met fontein, L-vorm eet-/woonkamer met bergkast, gashaard, plavuizenvloer met vloerverwarming en schuifpui naar terras en tuin, halfopen luxe keuken in hoekopstelling met diverse inbouwapparatuur, berging met cv installatie en toegang tot de tuin, garage met wasmachineaansluiting.
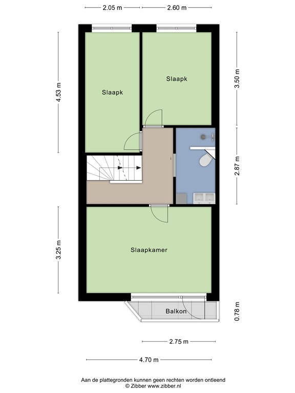
overloop, 3 slaapkamers (ouderslaapkamer met balkon), luxe moderne badkamer met inloopdouche, 2e toilet, dubbele wastafel in badkamermeubel en vloerverwarming.
middels vaste trap te bereiken zolderruimte met dakraam, 4e slaap-/werkkamer met dakkapel.
Onderhoudsvriendelijke tuin (zuiden) met houten tuinberging en overkapping.
De woning is volledig voorzien van isolatie. Houten kozijnen met dubbele beglazing, deels rolluiken. Schilderwerk buitenzijde is van 2021. Nefit Trendline HRC combi-ketel, bouwjaar 2018. Er is vloerverwarming in de woonkamer, keuken en badkamer aanwezig. In 2017 zijn 10 stuks zonnepanelen geplaatst. Definitief energielabel C geldig t/m 27-06-2026. De onderhoudsvriendelijke tuin met houten tuinberging en overkapping is gelegen op het zuiden. Er is parkeergelegenheid op eigen terrein en in de directe omgeving.
| Referentienummer | 05975 |
| Vraagprijs | € 525.000,- k.k. |
| Status | Nieuw in verkoop |
| Aanvaarding | In overleg |
| Aangeboden sinds | Dinsdag 25 november 2025 |
| Type object | Woonhuis, eengezinswoning, twee onder een kap woning |
| Soort bouw | Bestaande bouw |
| Bouwperiode | 1997 |
| Dakbedekking | Dakpannen |
| Type dak | Tentdak |
| Isolatievormen | Dakisolatie Dubbel glas Muurisolatie Spouwmuren Vloerisolatie Volledig geïsoleerd |
| Perceeloppervlakte | 282 m² |
| Woonoppervlakte | 130 m² |
| Inhoud | 450 m³ |
| Oppervlakte overige inpandige ruimten | 24 m² |
| Oppervlakte externe bergruimte | 8 m² |
| Oppervlakte gebouwgebonden buitenruimte | 2 m² |
| Aantal bouwlagen | 3 |
| Aantal kamers | 5 (waarvan 4 slaapkamers) |
| Aantal badkamers | 1 (en 1 apart toilet) |
| Ligging | Aan rustige weg Dichtbij openbaar vervoer In woonwijk Nabij school |
| Type | Achtertuin |
| Oriëntering | Zuiden |
| Staat | Goed onderhouden |
| Energielabel | C |
| CV ketel | Nefit Trendline HRC |
| Warmtebron | Gas |
| Bouwjaar | 2018 |
| Combiketel | Ja |
| Eigendom | Eigendom |
| Aantal parkeerplaatsen | 1 |
| Warm water | CV-ketel |
| Verwarmingssysteem | Centrale verwarming Gashaard Vloerverwarming (gedeeltelijk) |
| Ventilatie methode | Mechanische ventilatie |
| Keukenvoorzieningen | Inbouwapparatuur |
| Badkamervoorzieningen | Dubbele wastafel Inloopdouche Toilet Vloerverwarming Wastafelmeubel |
| Parkeergelegenheid | Aangebouwde stenen garage |
| Glasvezelaansluiting aanwezig | Ja |
| Tuin aanwezig | Ja |
| Heeft een garage | Ja |
| Heeft rolluiken | Ja |
| Heeft schuur/berging | Ja |
| Heeft een dakraam | Ja |
| Heeft ventilatie | Ja |
| Kadastrale aanduiding | Groesbeek C 4173 |
| Perceeloppervlakte | 282 m² |
| Omvang | Geheel perceel |
| Eigendomsituatie | Eigen grond |