| Prijs | € 635.000,- k.k. |
| Type object | Woonhuis, eengezinswoning, vrijstaande woning |
| Perceeloppervlakte | 520 m² |
| Woonoppervlakte | 140 m² |
| Aanvaarding | In overleg |
| Status | Nieuw in verkoop |
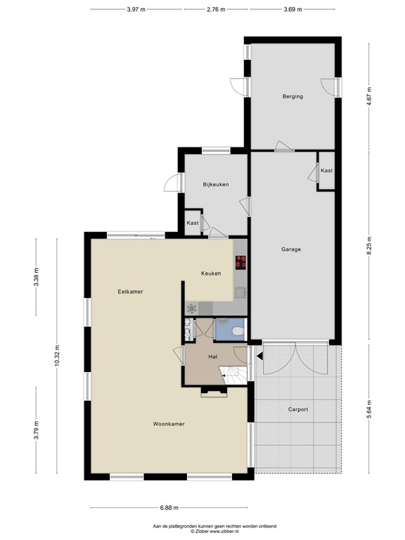
Op royaal kavel nabij het centrum van Groesbeek gelegen VRIJSTAANDE WONING, ruime AANGEBOUWDE GARAGE met CARPORT en achtertuin met alle privacy .
hal/entree, toilet, royale L-vorm eet-/woonkamer met toegang tot terras en tuin middels een schuifpui, halfopen keuken met luxe keukenblok in hoekopstelling met diverse inbouwapparatuur, bijkeuken met toegang tot terras en tuin, berging en ruime garage (hier zijn mogelijkheden om de woning levensloopbestendig te maken).
overloop, bergkast me cv-ketel, twee slaapkamers (op eenvoudige wijze zijn de slaapkamers te splitsen tot 3 – 4 slaapkamers), badkamer met dakkapel, douche, twee vaste wastafels en witgoedaansluitingen, separaat toilet met fontein.
Via plafondluik te bereiken met ruime bergzolder.
Verzorgde achtertuin met achterom en veel privacy.
De woning is voorzien van vloer-, muur-, glas-, en dakisolatie, houten kozijnen met dubbele beglazing. Nefit Topline cv-ketel, bouwjaar 2011. Definitief energielabel B is geldig tot 08-12-2035. Ruime parkeergelegenheid op eigen terrein. Mogelijkheden om 4 slaapkamers op de eerste verdieping te realiseren en om de woning levensloopbestendig te maken. De woning is gelegen op loopafstand van de uitgestrekte bossen en het centrum van Groesbeek met al haar voorzieningen. Het centrum van Nijmegen, ziekenhuizen en Universiteit liggen op circa 15 autominuten evenals autosnelwegen A73 en A77.
| Referentienummer | 05988 |
| Vraagprijs | € 635.000,- k.k. |
| Status | Nieuw in verkoop |
| Aanvaarding | In overleg |
| Aangeboden sinds | Maandag 16 maart 2026 |
| Type object | Woonhuis, eengezinswoning, vrijstaande woning |
| Soort bouw | Bestaande bouw |
| Bouwperiode | 1991 |
| Dakbedekking | Dakpannen |
| Type dak | Zadeldak |
| Isolatievormen | Ankerloze spouwmuren Dakisolatie Dubbel glas Muurisolatie Spouwmuren Vloerisolatie Volledig geïsoleerd |
| Perceeloppervlakte | 520 m² |
| Woonoppervlakte | 140 m² |
| Inhoud | 615 m³ |
| Oppervlakte overige inpandige ruimten | 57 m² |
| Oppervlakte gebouwgebonden buitenruimte | 21 m² |
| Aantal bouwlagen | 3 |
| Aantal kamers | 3 (waarvan 2 slaapkamers) |
| Aantal badkamers | 1 (en 1 apart toilet) |
| Ligging | Dichtbij openbaar vervoer In centrum In woonwijk Nabij school |
| Type | Achtertuin |
| Oriëntering | Noorden |
| Heeft een achterom | Ja |
| Staat | Goed onderhouden |
| Energielabel | B |
| CV ketel | Nefit Topline HR |
| Warmtebron | Gas |
| Bouwjaar | 2011 |
| Combiketel | Ja |
| Eigendom | Eigendom |
| Aantal parkeerplaatsen | 4 |
| Aantal overdekte parkeerplaatsen | 2 |
| Warm water | CV-ketel |
| Verwarmingssysteem | Centrale verwarming |
| Ventilatie methode | Mechanische ventilatie |
| Badkamervoorzieningen | Douche Wasmachineaansluiting Wastafel |
| Parkeergelegenheid | Garage met carport |
| Heeft een alarm | Ja |
| Glasvezelaansluiting aanwezig | Ja |
| Tuin aanwezig | Ja |
| Heeft een garage | Ja |
| Heeft ventilatie | Ja |
| Kadastrale aanduiding | Groesbeek L 4436 |
| Perceeloppervlakte | 520 m² |
| Omvang | Geheel perceel |
| Eigendomsituatie | Eigen grond |