Beschrijving
Nabij het centrum van Groesbeek gelegen TWEE-ONDER-EEN-KAP WONING met een ruime VRIJSTAANDE GARAGE met kelder en zolder, zonnige tuin gelegen op het zuiden.
Indeling
hal/entree met kelderkast, L-vorm eet-/woonkamer, woonkeuken met keukenblok in hoekopstelling met diverse inbouwapparatuur, toilet met fontein, badkamer met douchecabine en vaste wastafel.
Eerste verdieping
overloop, drie slaapkamers (2 ruime slaapkamers met dakkapel), badkamer met douche, vaste wastafel en toilet.
Tweede verdieping
bergzolder, middels vlizotrap te bereiken.
Tuin
Achtertuin gelegen op het zuidwesten.
Bijzonderheden
De woning is voorzien van muur- en dak isolatie, houten kozijnen met enkele- /dubbele beglazing. Nefit ProLine combiketel, bouwjaar 2012.
In 2021 zijn er 8 stuks zonnepanelen geplaatst. Mogelijk deels eterniet beplating (asbesthoudend) in dakbeschot woning aangebracht. Definitief energielabel C, geldig tot 16-01-2033.
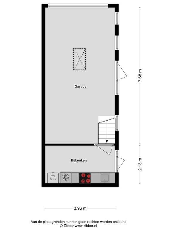
Ruime vrijstaande garage met bergzolder en kelder. Parkeergelegenheid op eigen terrein (garage) en in de directe omgeving van de woning.
De woning is gelegen op loopafstand van de uitgestrekte bossen en het centrum van Groesbeek met al haar voorzieningen. Het centrum van Nijmegen, ziekenhuizen en Universiteit liggen op circa 15 autominuten evenals autosnelwegen A73 en A77.
Plattegronden
181487797_1624413_kloos_begane_grond_first_design_20260123_a00847.jpg
181487797_1624413_kloos_eerste_verdiepi_first_design_20260123_8dde29.jpg
181487797_1624413_kloos_garage_first_design_20260123_22d739.jpg
181487797_1624413_kloos_kelder_first_design_20260123_ef3c6c.jpg