Beschrijving
Keurig onderhouden luxe en sfeervol uitgevoerde TUSSENWONING met aluminium OVERKAPPING, stenen BERGING met CARPORT en zonnige achtertuin (zuiden) met tuinhuis gelegen in een rustige kindvriendelijke woonwijk nabij scholen, bossen, winkels en het centrum van Groesbeek met al haar voorzieningen.
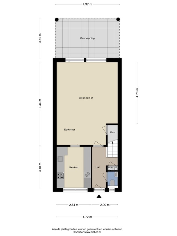
Indeling
hal/entree, luxe (hang)toilet met fontein, halfopen keuken met luxe keukenblok in dubbele opstelling met diverse inbouwapparatuur, eet-/woonkamer met
bergkast, toegang tot terras met aluminium overkapping en tuin middels kunststof schuifpui.
Eerste verdieping
overloop met bergkast, 2 royale slaapkamers (op eenvoudige wijze zijn weer drie slaapkamers te realiseren), luxe badkamer met inloopdouche, vaste wastafel in badkamer-meubel, 2e toilet en designradiator.
Tweede verdieping
voorzolder met dakraam, Nefit combiketel (2017, eigendom), wasmachine-aansluiting, keukenblokje en toegang tot vliering, 3e slaap-/werkkamer met dakraam en verwarming.
Tuin
Fraai aangelegde zonnige tuin gelegen op het zuiden.
Bijzonderheden
De woning is voorzien van vloer- en muurisolatie, kunststof kozijnen met HR++ beglazing, houten kozijnen (dakramen) met dubbele beglazing. Verwarming en warmwatervoorziening van de woning geschiedt middels Nefit combiketel (2017, eigendom). De gevels van de woning zijn gereinigd en opnieuw gevoegd in het jaar 2001.
In 2020 zijn 12 stuks zonnepanelen geplaatst. Er is parkeergelegenheid op eigen terrein en voldoende in de directe omgeving van de woning.
Definitief energielabel A is geldig tot 26-11-2035.
xxx deze luxe en sfeervol uitgevoerde woning moet u beslist gezien hebben ! xxx
Plattegronden
179381809_1593705_lieve_begane_grond_first_design_20251115_a02e2e.jpg
179381809_1593705_lieve_eerste_verdiepi_first_design_20251115_f846ff.jpg
179381809_1593705_lieve_tweede_verdiepi_first_design_20251115_126cfa.jpg
179381809_1593705_lieve_berging_first_design_20251115_d18983.jpg
179381809_1593705_lieve_tuinhuis_first_design_20251115_db6168.jpg