| Prijs | € 475.000,- k.k. |
| Type object | Woonhuis, eengezinswoning, vrijstaande woning |
| Perceeloppervlakte | 405 m² |
| Woonoppervlakte | 122 m² |
| Aanvaarding | In overleg |
| Status | Verkocht onder voorbehoud |
Op ruim kavel LEVENSLOOPBESTENDIGE VRIJSTAANDE WONING met royale zonnige tuin (ZW) en aan achterzijde te realiseren vrij uitzicht over agrarisch gebied gelegen tegenover Sportpark Zuid nabij het centrum van Groesbeek.
hal/entree, eet-/woonkamer met plavuizenvloer en vloerverwarming, open keuken met keukenblok in hoekopstelling met diverse inbouwapparatuur, slaapkamer met toegang tot badkamer met inloopdouche, vaste wastafel in badkamermeubel en toilet, werkkamer, toilet met fontein, bijkeuken/berging met witgoedaansluitingen.
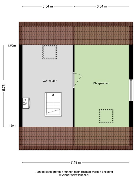
voorzolder met cv installatie en dakraam, royale slaapkamer met dakraam.
Onderhoudsvriendelijke tuin (zuidwesten gelegen) met prieel, tuinberging en achterom.
Airco-unit in de woonkamer, vloerverwarming in woon- en werkkamer. Houten kozijnen met enkele- en dubbele beglazing, Intergas Kompakt HRE combiketel, bouwjaar 2019. Onderhoudsvriendelijke tuin (zuidwesten gelegen) met prieel, tuinberging en achterom. Er is parkeergelegenheid voor 1 auto op eigen terrein en voldoende in de directe omgeving van de woning. Het definitieve energielabel C is geldig tot 22-10-2035.
| Referentienummer | 05973 |
| Vraagprijs | € 475.000,- k.k. |
| Status | Verkocht onder voorbehoud |
| Aanvaarding | In overleg |
| Aangeboden sinds | Woensdag 12 november 2025 |
| Laatste wijziging | Donderdag 8 januari 2026 |
| Type object | Woonhuis, eengezinswoning, vrijstaande woning |
| Soort bouw | Bestaande bouw |
| Toegankelijkheid | Mindervaliden Senioren |
| Bouwperiode | 1995 |
| Dakbedekking | Dakpannen |
| Type dak | Zadeldak |
| Isolatievormen | Dakisolatie Grotendeels dubbel glas Muurisolatie Spouwmuren Vloerisolatie |
| Perceeloppervlakte | 405 m² |
| Woonoppervlakte | 122 m² |
| Inhoud | 410 m³ |
| Oppervlakte externe bergruimte | 6 m² |
| Aantal bouwlagen | 2 |
| Aantal kamers | 3 (waarvan 2 slaapkamers) |
| Aantal badkamers | 1 (en 1 apart toilet) |
| Ligging | Dichtbij openbaar vervoer In woonwijk Nabij school |
| Type | Tuin rondom |
| Oriëntering | Zuid-west |
| Heeft een achterom | Ja |
| Staat | Goed onderhouden |
| Energielabel | C |
| CV ketel | Intergas HRE kompakt |
| Warmtebron | Gas |
| Bouwjaar | 2019 |
| Combiketel | Ja |
| Eigendom | Eigendom |
| Aantal parkeerplaatsen | 1 |
| Warm water | CV-ketel |
| Verwarmingssysteem | Airconditioning Centrale verwarming Vloerverwarming (gedeeltelijk) |
| Badkamervoorzieningen | Douche Toilet Wastafel Wastafelmeubel |
| Heeft airco | Ja |
| Glasvezelaansluiting aanwezig | Ja |
| Tuin aanwezig | Ja |
| Heeft schuur/berging | Ja |
| Heeft een dakraam | Ja |
| Kadastrale aanduiding | Groesbeek E 2249 |
| Perceeloppervlakte | 405 m² |
| Omvang | Geheel perceel |
| Eigendomsituatie | Eigen grond |