Beschrijving
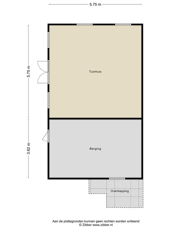
Op royaal kavel in een rustige woonomgeving nabij bossen gelegen VRIJSTAANDE WONING met royaal VRIJSTAAND TUINHUIS, TUINBERGING en TUINPRIEEL.
Indeling
hal/entree, L-vorm eet-/woonkamer met haard (allesbrander) en airco-unit, woonkeuken met luxe keukenblok in dubbel opstelling met diverse inbouwapparatuur, slaap-/werkkamer, bijkeuken met witgoedaansluiting, bergkast met cv-ketel, luxe (hang)toilet met fontein.
Eerste verdieping
royale overloop met dakkapel, 2 slaapkamers (één slaapkamer met dakkapel, één slaapkamer met toegang tot klein balkon), berging, badkamer met inloopdouche, 2e toilet en vaste wastafel. Door de indeling van de overloop te wijzigen ontstaat de mogelijkheid voor een 3e slaapkamer.
Overige verdiepingen
Onderverdieping: provisiekelder.
Balkon
Klein balkon bereikbaar via slaapkamer.
Tuin
Diepe (circa 15.75 meter) onderhoudsvriendelijke achtertuin met royaal tuinhuis en tuinprieel, tuin gelegen op het Noord Oosten
Bijzonderheden
Gehele woning is voorzien van kunststof kozijnen met dubbele beglazing, Remeha Avanta cv-combiketel, bouwjaar 2022. Het definitieve energielabel E is geldig tot 13-10-2035.
Plattegronden
177365461_1583604_schro_kelder_first_design_20250929_726b7c.jpg
177365461_1583604_schro_begane_grond_first_design_20250929_222c68.jpg
177365461_1583604_schro_eerste_verdiepi_first_design_20250929_6a84e7.jpg
177365461_1583604_schro_tuinhuis_first_design_20250929_4d5768.jpg