Prijs | € 398.500,- k.k. |
Type object | Woonhuis, eengezinswoning, tussenwoning |
Perceeloppervlakte | 137 m² |
Woonoppervlakte | 133 m² |
Aanvaarding | In overleg |
Status | Verkocht |
Keurig onderhouden luxe uitgevoerde royale SPLITLEVEL TUSSENWONING met GARAGE, KELDER, BALKON en DAKTERRAS, een zonnige diepe achtertuin (gelegen zuidwesten) met achterom gelegen in een rustige kindvriendelijke woonwijk.
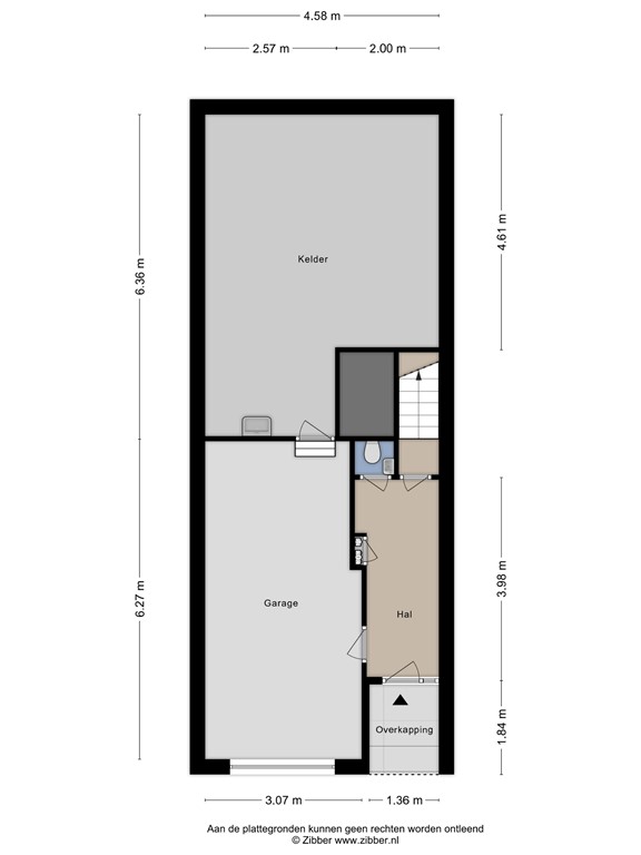
Hal/entree, luxe (hang)toilet met fontein, garage met toegang tot de kelder.
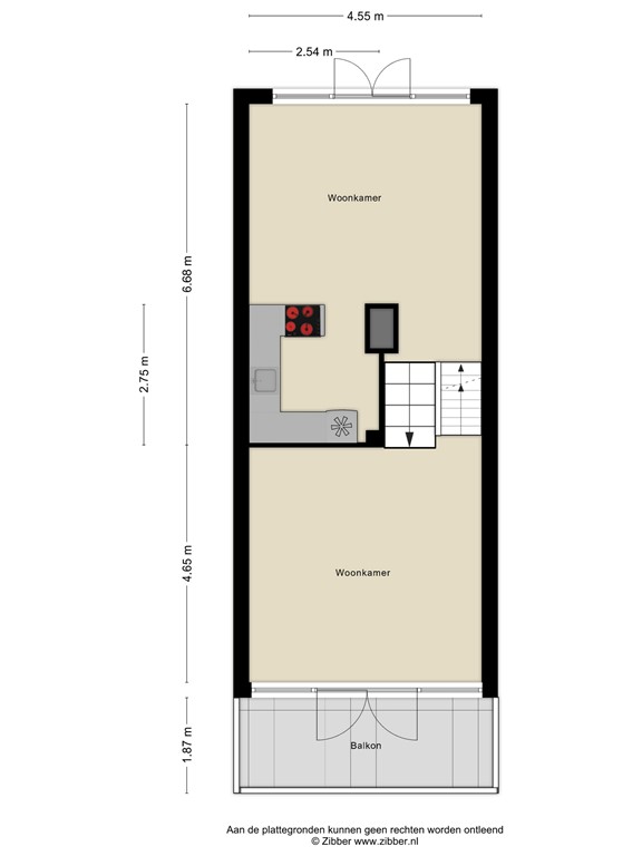
Ruime woonkeuken met luxe modern keukenblok (2019) in U-opstelling met diverse inbouwapparatuur, toegang tot terras en tuin middels openslaande deuren, woonkamer met spekkachel en toegang tot het balkon middels openslaande deuren.
Overloop, 3 slaapkamer elk voorzien van een airco-unit, luxe badkamer met ligbad-/douchecombinatie, hoekdouchecabine, 2e toilet, vaste wastafel en designradiator.
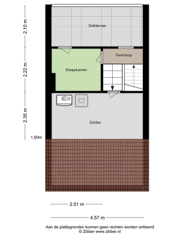
Onderverdieping: Kelderruimte, vaste wastafel, verwarming. 3e Verdieping: Overloop met gevelraam, 4e slaapkamer met toegang tot het dakterras, bergruimte met cv installatie en witgoedaansluiting, bergzolder.
Balkon aan voorzijde van de woning, gelegen op het noordoosten, te bereiken via de woonkamer. Dakterras aan achterzijde van de woning, gelegen op het zuidwesten, te bereiken via de slaapkamer op 3e verdieping.
Ruime zonnige achtertuin (gelegen zuidwesten, circa 18 meter diep) met niveauverschil, twee terrassen, vijverpartij en achterom.
De gehele woning is voorzien van kunststof kozijnen met HR++ beglazing, (m.u.v. houten voordeur met enkele beglazing), verwarming en warmwatervoorziening geschiedt middels Nefit combiketel (2016, eigendom). De woonkeuken en woonkamer is voorzien van vloerverwarming. Definitief energielabel C, geldig tot en met 02-10-2028. U kunt parkeren op eigen terrein, tegenover en in de directe omgeving van de woning. Wijk “de Lindeboom” is gelegen nabij scholen, winkels en op slechts enkele fietsminuten van treinstation Molenhoek. Voor rustzoekers en natuurliefhebbers ligt natuurgebied ‘de Mookerheide’, recreatiegebied ‘Mookerplas’ en rivier ‘de Maas’ met haar uiterwaarden op loopafstand.
Referentienummer | 05963 |
Vraagprijs | € 398.500,- k.k. |
Status | Verkocht |
Aanvaarding | In overleg |
Aangeboden sinds | Donderdag 18 september 2025 |
Laatste wijziging | Woensdag 15 oktober 2025 |
Type object | Woonhuis, eengezinswoning, tussenwoning |
Soort bouw | Bestaande bouw |
Bouwperiode | 1975 |
Dakbedekking | Dakpannen |
Type dak | Zadeldak |
Isolatievormen | Grotendeels dubbel glas HR-glas Spouwmuren |
Perceeloppervlakte | 137 m² |
Woonoppervlakte | 133 m² |
Inhoud | 620 m³ |
Oppervlakte overige inpandige ruimten | 50 m² |
Oppervlakte gebouwgebonden buitenruimte | 21 m² |
Aantal bouwlagen | 5 |
Aantal kamers | 5 (waarvan 4 slaapkamers) |
Aantal badkamers | 1 (en 1 apart toilet) |
Ligging | Aan rustige weg Dichtbij openbaar vervoer In bosrijke omgeving In woonwijk Nabij school |
Type | Achtertuin |
Oriëntering | Zuid-west |
Heeft een achterom | Ja |
Staat | Prachtig aangelegd |
Energielabel | C |
CV ketel | Nefit |
Warmtebron | Gas |
Bouwjaar | 2016 |
Combiketel | Ja |
Eigendom | Eigendom |
Aantal parkeerplaatsen | 2 |
Aantal overdekte parkeerplaatsen | 1 |
Warm water | CV-ketel |
Verwarmingssysteem | Airconditioning Centrale verwarming Houtkachel Vloerverwarming (gedeeltelijk) |
Ventilatie methode | Mechanische ventilatie |
Badkamervoorzieningen | Douche Ligbad Toilet Wastafel |
Parkeergelegenheid | Inpandige garage |
Heeft airco | Ja |
Heeft een balkon | Ja |
Glasvezelaansluiting aanwezig | Ja |
Tuin aanwezig | Ja |
Heeft een garage | Ja |
Heeft zonwering | Ja |
Heeft ventilatie | Ja |
Kadastrale aanduiding | Mook en Middelaar D 648 |
Perceeloppervlakte | 137 m² |
Omvang | Geheel perceel |
Eigendomsituatie | Eigen grond |