Beschrijving
Aan royale groenvoorziening naast het Maas-Waalkanaal rustig gelegen opvallend ruime EINDWONING met stenen TUINBERGING en verzorgde achtertuin gelegen op het zuiden met achterom.
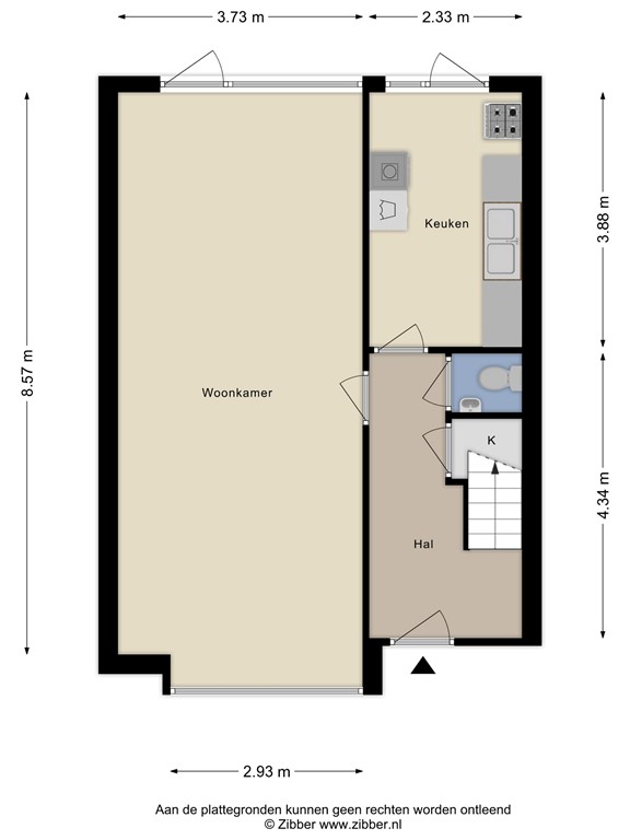
Indeling
hal/entree met bergkast, toilet met fontein, ruime eet-/woonkamer met erker en toegang tot terras en achtertuin, dichte keuken met keukenblok in rechte opstelling en
witgoedaansluitingen.
Eerste verdieping
overloop, 3 slaapkamers, badkamer met douchecabine en vaste wastafel, separaat toilet met fontein. Vaste trap naar tweede verdieping.
Tweede verdieping
voorzolder met dakraam en cv-installatie, 4e slaap-/werkkamer met dakkapel en berging.
Tuin
Verzorgde achtertuin gelegen op het zuiden met stenen berging en achterom.
Bijzonderheden
De woning is voorzien van muur- en dakisolatie, houten kozijnen met dubbele beglazing (uitgezonderd voor- en achterdeur / enkele beglazing), dakkapel met HR++ beglazing, betonnen verdiepingsvloeren, alarminstallatie met bewegingsmelders. Verwarming en warmwatervoorziening geschiedt middels Intergas Kompakt HRE combiketel, bouwjaar 2020 (eigendom). Definitief energielabel C geldig tot 12-02-2036.
Heerlijk rustige groene woonomgeving nabij het water, uitvalswegen, snelweg A73, openbaar vervoer, wijkwinkelcentrum Malvert en Meijhorst, grootwinkelcentrum Dukenburg en stadspark Staddijk. Parkeergelegenheid is er in de directe omgeving van de woning.
Plattegronden
182200159_1629271_lankf_begane_grond_first_design_20260212_5b336d.jpg
182200159_1629271_lankf_eerste_verdiepi_first_design_20260212_f98868.jpg
182200159_1629271_lankf_tweede_verdiepi_first_design_20260212_c1dd1e.jpg
182200159_1629271_lankf_berging_first_design_20260212_18d24a.jpg