Beschrijving
Aan rustige wijkstraat gelegen UITGEBOUWDE TUSSENWONING met TUINBERGING en onderhoudsvriendelijke tuin met achterom.
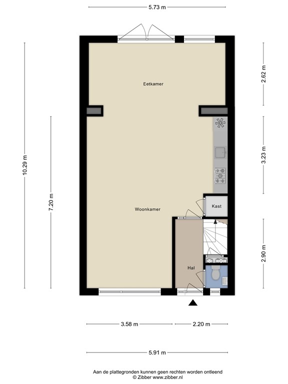
Indeling
hal/entree, toilet met fontein, royale uitgebouwde (2024) eet-/woonkamer met PVC vloer en openslaande deuren naar terras en tuin, halfopen keuken met luxe moderne keukenblok (2018) in rechte opstelling met diverse inbouwapparatuur.
Eerste verdieping
overloop met bergkast, 3 slaapkamers, luxe moderne badkamer (2021) met douchecabine, 2e toilet, vaste wastafel in badkamermeubel en designradiator.
Tweede verdieping
middels vaste trap te bereiken voorzolder met cv installatie, dakraam en wasmachineaansluiting, 4e slaapkamer met dakraam.
Tuin
Onderhoudsvriendelijke achtertuin, stenen tuinberging met overkapping en achterom gelegen op het noordwesten.
Bijzonderheden
De woning is voorzien van vloer-(deels) , glas- en dakisolatie. Houten kozijnen met dubbele beglazing. Intergas Kompakt HRE combiketel, bouwjaar 2020 (huurkosten € 32,00 per maand). Onderhoudsvriendelijke achtertuin (ligging noordwesten) met stenen berging, overkapping en achterom. Asbest aanwezig in het dakbeschot van de woning (eterniet dakplaten) en in de rookgasafvoer op 1e / 2e verdieping. Definitief energielabel C.
De woning is gelegen in een rustige woonomgeving, nabij voorzieningen als winkels, scholen, openbaar vervoer en uitvalswegen.
Plattegronden
178377403_1589020_malve_begane_grond_first_design_20251022_0fb53a.jpg
178377403_1589020_malve_eerste_verdiepi_first_design_20251022_d79aa3.jpg
178377403_1589020_malve_tweede_verdiepi_first_design_20251022_dbc260.jpg
178377403_1589020_malve_berging_first_design_20251022_daf259.jpg